Toiture terrasse

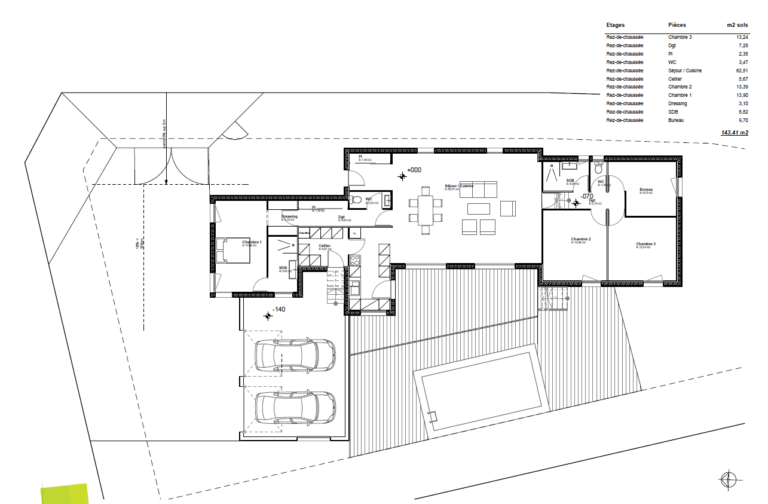
Villa moderne, entièrement climatisée, toiture complète en toit terrasse, intégralement en ossature bois composée d’un Salon / Séjour, d’une Salle à manger / Cuisine semi ouverte, de toilettes avec lave-main.
Ce bel espace de vie bénéficie de splendides ouvertures et s’ouvre sur de spacieuses terrasses grâce à de larges baies vitrées.
Pour compléter cette villa d’architecte ossature bois : une suite parentale avec dressing et salle d’eau privative, deux chambres avec placards et salle de bain double vasque, cellier/ buanderie et une spacieuse pièce de presque 10 m² aménageable rapidement en 4ème chambre, salle de jeux, de sport, de cinéma…Selon vos envies.

Loire Rhône Maison Ossature Bois Construction Ossature bois Marché construction Constructeur Maître d'Oeuvre Loire 42 Maison Individuelle extension surélévation 69-Rhône Construction Chantier Ecoconstruction Empreinte écologique Isolation Thermique MOB